Каминная топка Brunner Urfeuer 50/44/66/44
Замер в подарок в день обращения!
Доставка за 1 день и 0 рублей
Вентиляционные решетки из Европы в подарок
Удобный шоурум (Славянский Мир)
- ЦЕНА: 1 083 250 руб.
-
Нашли дешевле?
Сделаем еще выгоднее!
Каминная топка Brunner Urfeuer 50/44/66/44 (Бруннер Урфойер 50/44/66/44)
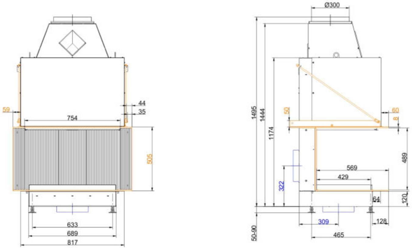
Модель для тех, кому важнее по-настоящему ощущать огонь, а не отапливать комнату долгое время. Устройство со стальным корпусом и открытой конструкцией, без стекла. Номинальная мощность равна 6.5 кВт. У топки трёхсторонний проём для обзора на горение. Для безопасной работы предусмотрен выдвижной искрозащитный кожух, обрамлением вокруг него выступает монтажная рама чёрного цвета. Ширина проёма с фронтальной стороны — 754 мм, высота — 505 мм.
Топочная камера футерована чёрным чугуном с рифлёной текстурой. Модель с подовой (безколосниковой) системой горения. Очаг с возможностью притока воздуха извне. Для отвода продуктов сгорания необходим дымоход диаметром 300 мм.
Устройство можно дооснастить:
- стеклянной панелью с кронштейном, для защиты от дыма;
- модульными чугунными расширениями топки в любую сторону;
- ручной или моторизованной заслонкой для подачи воздуха.
Каминные топки Brunner Urfeuer

Каминные топки Бруннер Urfeuer — это открытые изделия для тех, кто хочет по-настоящему наслаждаться огнём: находиться максимально близко к нему, ощущать его тепло, чувствовать запах. Эффективность таких устройств второстепенна, КПД достаточно низок (около 20%), во главе угла стоят эмоции.
Стальной корпус очагов Urfeuer оснащен сложной двустенной конструкцией с воздухоотводом и "воздушной завесой" во фронтальной части, обеспечивающими баланс давления, что препятствует проникновению дымовых газов в помещение. Мощность устройств — от 5.5 до 10 кВт.
Для защиты пространства вокруг камина и предотвращения выпадения углей все топки серии оснащаются выдвижным экраном с вертикальными направляющими. Он выполнен из чёрной нержавеющей стали в виде сетки. Экран полностью скрывается в корпусе устройства в открытом состоянии. Опущенная сетка практически незаметна и не мешает обзору. При необходимости конструкцию можно быстро и легко снять без специальных инструментов.
В ассортименте Brunner есть три варианта формата топки:
- Прямой проём — одна фронтальная сторона топки, лучшее размещение — у стены. Некоторые модели могут снабжаться модулем для приготовления мяса, рыбы или овощей на открытом огне.
- Трехсторонний проём — пристенное расположение с очень широким углом обзора в 180°.
- Четырёхсторонний проём — отдельностоящий блок, устанавливаемый в центр комнаты. Такая топка создаст неповторимую атмосферу нахождения у костра в вашей гостиной.
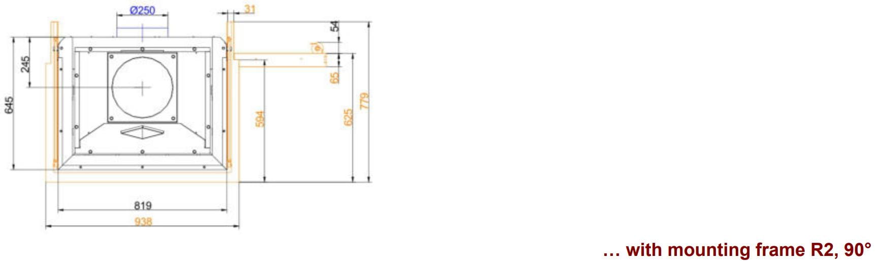
Все модели оснащаются стальной монтажной рамкой, футеровка топочных камер выполнена из чёрного чугуна с рифлёной поверхностью. При желании покупателя топку можно дооснастить дополнительными боковыми чугунными расширениями топки.
В серии Urfeuer используется технология подового (безколосникового) горения. Для отвода продуктов сгорания необходим дымоход диаметром 250 - 350 мм, в зависимости от модели.
О компании Brunner

Бруннер — семейная немецкая компания с многолетней историей, расположенная в городе Эггенфельден, Нижняя Бавария. С момента основания Мартин Бруннер руководствовался следующей целью: создание высококачественных, честных и долговечных устройств. Эта цель остаётся актуальной и сегодня, вот уже около 80 лет.
Топки и печи Brunner — продукция премиум-класса с достаточно высокой ценой, поскольку дешёвое решение никогда не будет лучшим. Компания создаёт свои приборы, рассчитывая на долгие годы службы, с использованием последних технологий и высококачественных материалов. Данное утверждение подтверждается тем, что более миллиона семей по всему земному шару наслаждаются продукцией Brunner.
Высокая стоимость товара окупится благодаря бесперебойной эксплуатации, незначительным затратам на тех. обслуживание, сбалансированному распределению тепла и максимальной эффективности отопительных приборов Brunner. Качество и эффективность каминных топок подтверждаются многочисленными сертификатами: 15a BVG (2015), LRV и 1.BlmSchV Stufe 2.
| Характеристики товара | |
| Высота (мм) | 1585 |
| Ширина (мм) | 938 |
| Глубина (мм) | 779 |
| Мощность (кВт) | 6.5 |
| Вес (кг) | 248 |
| Высота по дверце (стеклу) (мм) | 505 |
| Ширина по дверце (стеклу) (мм) | 754 | 441 |
| Диаметр дымохода (мм) | 300 |
| Стекло | Без стекла |
| Колосник и зольник | Нет |
| Водяной контур | Нет |
| Длина поленьев (см) | 50 |
| Материал топки | Сталь |
| Открывание дверцы | Подъем вверх |
| Приток воздуха извне | Есть |
| Страна производства | Германия |
| Топливо | Дрова |
| Футеровка | Чугун |
Инструкции и файлы
PDF Каталог Топки Brunner на дровах (2025 г., Англ.) (15.71MB)PDF Рук. по монтажу Brunner Urfeuer 50/44/66/44 (23г. Англ.) (1.78MB)
PDF Рук. по эксплуатации Brunner Urfeuer 50/44/66/44 (24 г. Англ.) (661.58KB)
PDF Технический лист Brunner Urfeuer 50/44/66/44 (2023 г. Англ.) (356.72KB)
9:00 - 19:00 (сб.-вс.)















