Каминная топка Brunner BKH 5.0 Corner 42-42-42 DT
Замер в подарок в день обращения!
Доставка за 1 день и 0 рублей
Вентиляционные решетки из Европы в подарок
Удобный шоурум (Славянский Мир)
- ЦЕНА: 470 250 руб.
-
Нашли дешевле?
Сделаем еще выгоднее!
Каминная топка Brunner BKH 5.0 Corner 42-42-42 DT (Бруннер БКХ 5.0 Угловая 42-42-42 DT)
Модель премиум-класса со стальным корпусом и различными модификациями дымосборника:
- Чугунный дымосборник — не предназначен для прямого подключения дымохода, используется только в сочетании с системами MSS и GNF — объёмными керамическими или чугунными теплонакопительными модулями.
- Низкий чугунный дымосборник — вариант с уменьшенным диаметром дымохода.
- Чугунный дымосборник с теплообменными кольцами — быстрый нагрев и быстрая отдача тепла в помещение. Высокая мощность конвекции в небольшом пространстве.
- Теплонакопительный модуль MAS — компромиссный вариант между предыдущими решениями, когда необходим теплонакопительный эффект в ограниченном пространстве.
- Бойлер — решение для тех, кто хочет организовать полноценную систему отопления в своём доме.
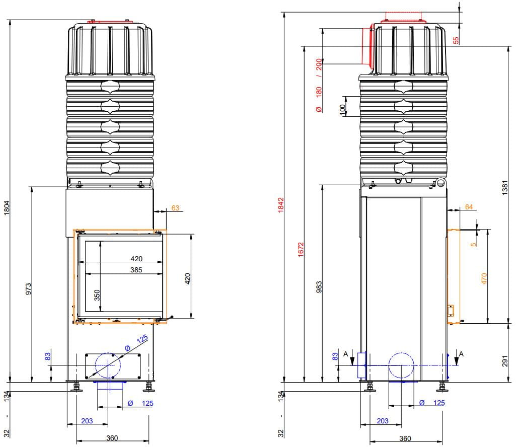
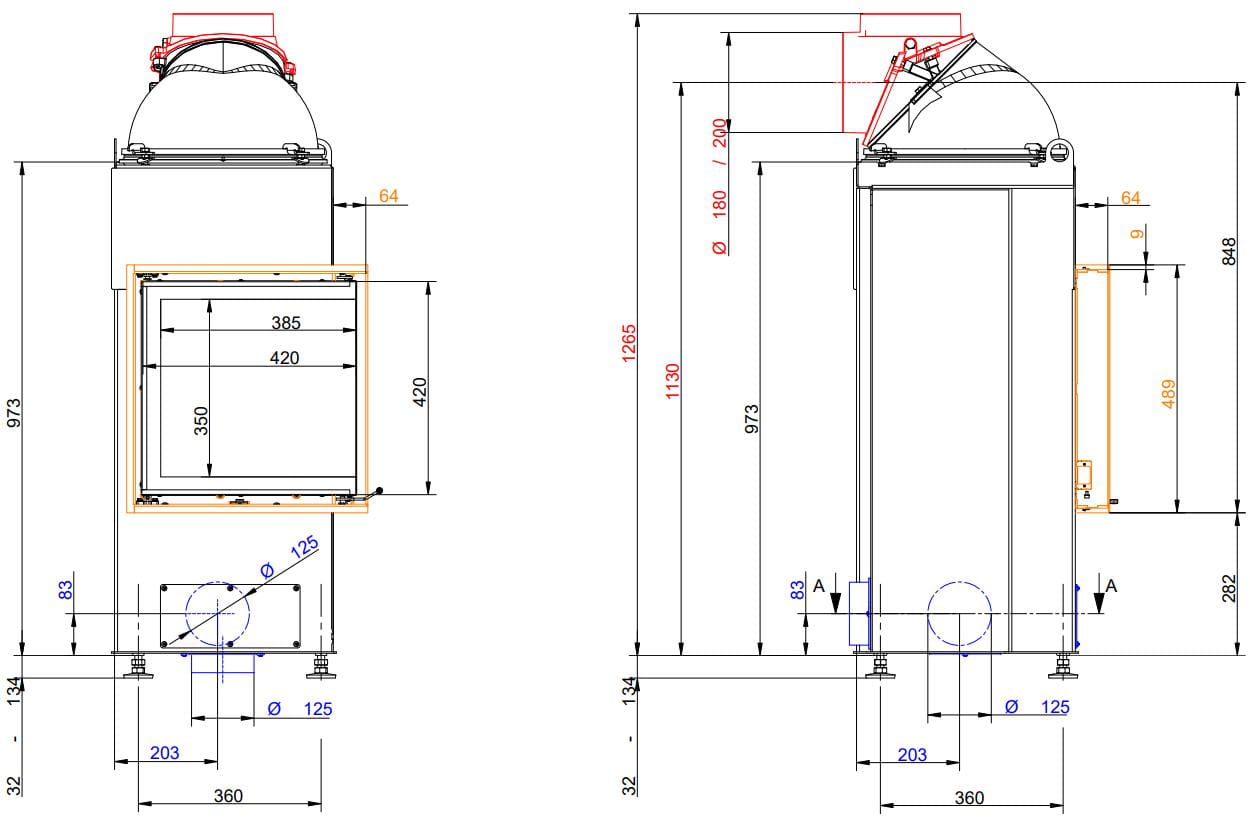
Номинальная мощность равна 7 кВт, чего хватает для обогрева помещения в 175 м³. У топки угловое жаропрочное стекло, обрамление вокруг него можно выбрать самостоятельно. Дверца с боковым открыванием. Ширина и высота по дверце — 420 мм.
Топочная камера футерована шамотом светлого цвета, который можно заменить на чёрный чугун. Модель с инновационной чашевидной подовой (безколосниковой) системой горения. Топка обладает всеми современными технологиями горения: вторичный дожиг газов и система "Чистое стекло". Очаг с возможностью притока воздуха извне. Для отвода продуктов сгорания необходим дымоход диаметром 200 или 180 мм. Гарантия — 5 лет.
Устройство можно дооснастить:
- автоматической системой управления горением EAS;
- стеклом с покрытием, которое отражает до трети тепловых лучей в камеру сгорания;
- адаптером для подвода воздуха извне;
- встроенной системой вторичной подачи воздуха с гофрированным 3-метровым шлангом;
- каталитическим модулем BKH 5.0, снижающим вредные выбросы в атмосферу.
Каминные топки Brunner BKH 5.0 Corner

Каминные топки Бруннер BKH 5.0 Corner — это изделия премиум-класса в области отопительных приборов. При их создании используются только самые передовые технологии и качественные материалы. Корпус очагов Corner выполнен из стали, что обеспечивает быстрый нагрев помещения. Модельный ряд состоит из топок с угловым стеклом. Дверца может открываться вбок (DT в названии) или оснащаться подъёмным механизмом (ST). Номинальная мощность топок — от 7 до 12 кВт. Гарантия — 5 лет. Подробнее об особенностях топок Brunner BKH 5.0 Corner:
Многообразие дымосборников
Один из важнейших элементов каминной топки — дымосборник. В компании Brunner решили не ограничиваться одним вариантом. Выбор дымосборника в каждой топке остаётся за покупателем, исходя из его пожеланий и потребностей:
Чугунный дымосборник

Наиболее доступный по цене вариант. Не предназначен для прямого подключения дымохода. Используется только в сочетании с системами MSS и GNF — объёмными керамическими или чугунными теплонакопительными модулями, устанавливаемыми рядом с топкой или на неё. Такое решение подходит для тех, кто хочет создать полноценный теплоаккумулирующий камин, способный очень долго отдавать тепло в дом.
Чугунный дымосборник с теплообменными кольцами

Горячий воздух проходит через металлические кольца с ребристой структурой. Этот вариант обеспечивает быстрый нагрев и быструю отдачу тепла в помещение. После растопки, для поддержания постоянной теплоотдачи, нужно добавлять дрова примерно один раз в три часа. Расход топлива будет достаточно небольшим. Это идеальное решение, когда требуется высокая мощность конвекции в небольшом пространстве.
Чугунный дымосборник + теплонакопительный модуль MAS

Горячий воздух проходит через керамические теплонакопительные кольца. Конструкция колец выполнена в виде спирали с тремя каналами для горячего воздуха. Это компромиссный вариант между предыдущими решениями, когда необходим теплонакопительный эффект в ограниченном пространстве.
Чугунный дымосборник + бойлер

Горячий воздух проходит через встроенный водяной теплообменник. Модуль с гладкими стенками и вертикально расположенными трубами теплообменника оптимизирован для минимального расхода топлива. Решение для тех, кто хочет организовать полноценную систему отопления в своём доме.
Инновационное подовое горение

В топках Brunner BKH 5.0 используется запатентованная подовая система горения: чашевидная форма без колосника и зольного ящика. Благодаря скрытой откалиброванной подаче воздуха дрова сгорают особенно чисто и эффективно. Подачу как первичного, так и вторичного воздуха можно регулировать с помощью всего лишь одного управляющего элемента.
Футеровка

Топочная камера Brunner BKH 5.0 выложена натуральным шамотом светлого цвета: такая футеровка подчеркнёт всю красоту горения. Если же вас больше привлекают тёмные цвета, — задняя стенка топки может быть выполнена из чёрного чугуна (опционально).
Стекло
В топках Brunner используется термостойкое стекло из стеклокерамики. Это специальная разработка, рассчитанная на высокие температуры и механические нагрузки, возникающие в камере сгорания. На выбор покупателя доступно несколько вариантов остекления:
Стандартное одинарное остекление

Абсолютное большинство тепловых лучей проходит через керамическое стекло в помещение. Расстояние для размещения мебели или горючих элементов от топки должно составлять не менее 120 см.
Стекло с покрытием

До трети тепловых лучей отражается обратно в камеру сгорания. Само покрытие никак не влияет на обзор пламени. Такое решение позволит уменьшить расстояние до мебели или горючих элементов у топки до 80 см.
Современные системы горения
Все топки Brunner оснащены современными системами горения: вторичный (дополнительный) дожиг газов, повышающий эффективность горения, и система "Чистое стекло" — по специальным каналам происходит обдув стекла, что обеспечивает его чистоту.
Также все модели Brunner имеют возможность подвода воздуха на горение извне (из соседнего помещения или улицы).
Открытие дверцы вверх

Для поднятия дверцы в топках используется прочная конструкция Easy-Lift, оснащенная цельнометаллическими шкивами, а также встроенными и открытыми шарикоподшипниками, выдерживающими высокие температуры. В случае необходимости очистки стекла предусмотрена система "Клик-Клак": по нажатию рычажка дверца открывается в сторону.
Дверной профиль

В топках Brunner устанавливается система "Puzzle": устойчивый к изгибу и кручению профиль дверцы. С внешней стороны предусмотрены специальные каналы для керамического стекла и уплотнительного шнура. Шнур представляет собой гибкий шланг, способный выдержать высокую температуру (до 750° C) с пружинным металлическим сердечником.
Удобная ручка

В моделях топок Brunner BKH 5.0 с подъёмным механизмом устанавливается съёмная ручка со спиралью из нержавеющей стали.
Встроенная система подачи вторичного воздуха

Современные дымоходы часто эксплуатируются при чрезмерно высоком отрицательном давлении. Следствием этого являются нестабильность горения, низкая эффективность и затраты на очистку. Заслонка, установленная в воздухоподводящей коробке, регулирует поток воздуха между каминной топкой и системой отвода дымовых газов. Подключаемый комплект обеспечит необходимое давление в дымоходе и стабильную структуру пламени.
Система управления горением EAS

Brunner озаботилась безопасностью отопления, удобством эксплуатации и минимизацией выбросов вредных веществ в атмосферу. Так, в 1990 году была разработана первая версия системы EAS.
Сегодняшний вариант автоматически регулирует подачу воздуха и обеспечивает оптимальное горение. Система распознает влажные или неподходящие дрова, даст указания по идеальному времени для повторной загрузки. После сгорания топлива EAS отключает подачу воздуха для повышения эффективности и комфорта. Не нужно самому следить за горением и регулировать его процесс. Всё, что остаётся делать вам, — развести огонь или добавить дров.
Катализатор

Каждую топку Brunner можно дооснастить каталитическим нейтрализатором: после выхода из камеры сгорания нагревательные газы проходят через керамические ячейки с каталитическим покрытием. Это сокращает выбросы CO до 80% и углеводородов более чем на 50% (согласно исследованию Немецкого исследовательского центра биомассы). Установка и очистка модуля происходит прямо через камеру сгорания.
О компании Brunner

Бруннер — семейная немецкая компания с многолетней историей, расположенная в городе Эггенфельден, Нижняя Бавария. С момента основания Мартин Бруннер руководствовался следующей целью: создание высококачественных, честных и долговечных устройств. Эта цель остаётся актуальной и сегодня, вот уже около 80 лет.
Топки и печи Brunner — продукция премиум-класса с достаточно высокой ценой, поскольку дешёвое решение никогда не будет лучшим. Компания создаёт свои приборы, рассчитывая на долгие годы службы, с использованием последних технологий и высококачественных материалов. Данное утверждение подтверждается тем, что более миллиона семей по всему земному шару наслаждаются продукцией Brunner.
Высокая стоимость товара окупится благодаря бесперебойной эксплуатации, незначительным затратам на тех. обслуживание, сбалансированному распределению тепла и максимальной эффективности отопительных приборов Brunner. Качество и эффективность каминных топок подтверждаются многочисленными сертификатами: 15a BVG (2015), LRV и 1.BlmSchV Stufe 2.
| Характеристики товара | |
| Высота (мм) | 1399 | 1599 | 1976 |
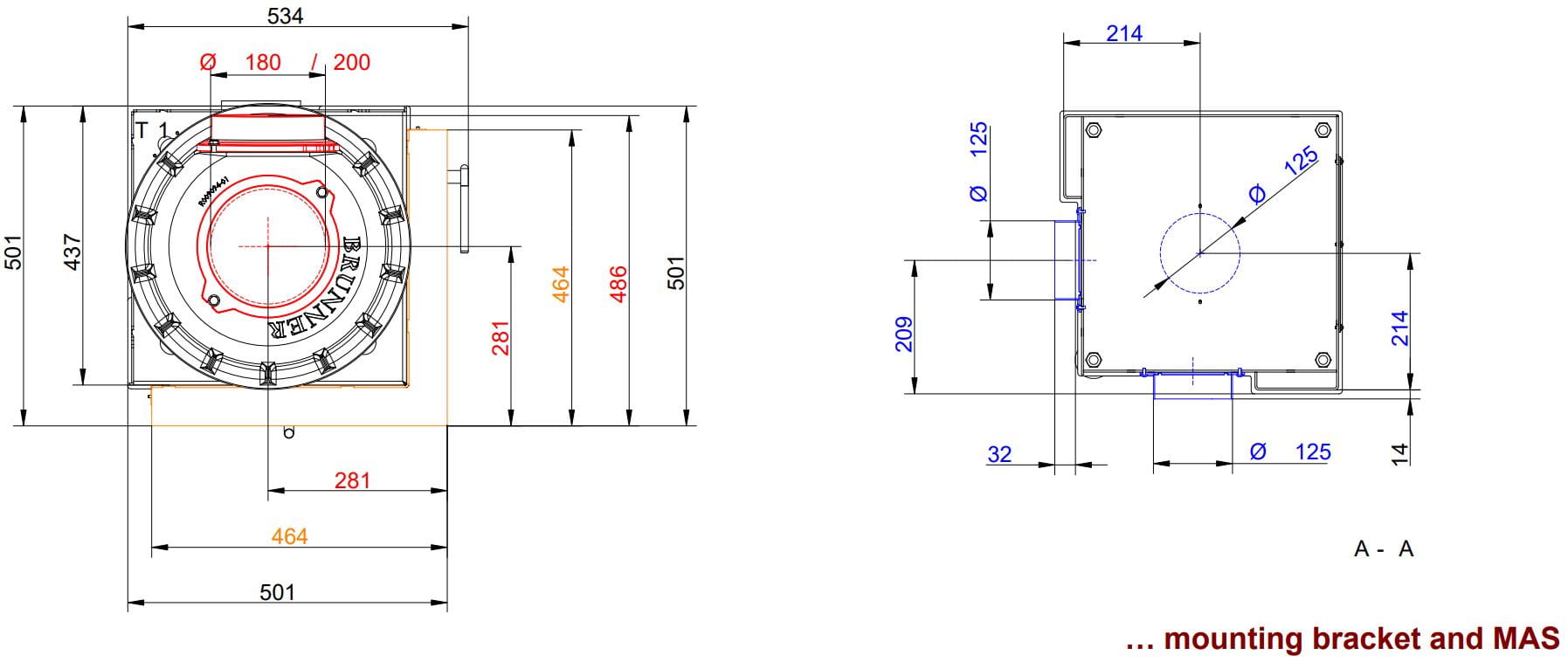
| Ширина (мм) | 534 |
| Глубина (мм) | 526 | 522 | 501 |
| Мощность (кВт) | 7 |
| Вес (кг) | 149 |
| Высота по дверце (стеклу) (мм) | 420 |
| Ширина по дверце (стеклу) (мм) | 420 |
| Диаметр дымохода (мм) | 200 | 180 | 200 | 180 | 180 |
| Стекло | Два стекла |
| Колосник и зольник | Нет |
| Водяной контур | Нет |
| Объем помещения (м3) | 175 |
| Длина поленьев (см) | 33 |
| Материал топки | Сталь |
| Открывание дверцы | Боковое |
| Приток воздуха извне | Есть |
| Страна производства | Германия |
| Топливо | Дрова |
| Футеровка | Шамот |
| Гарантия | 5 лет |
Инструкции и файлы
PDF Каталог Топки Brunner на дровах (2025 г., Англ.) (15.71MB)PDF Руководство пользователя Топки Brunner BKH (Англ.) (4.5MB)
PDF Рук. по монтажу Brunner BKH 5.0 Corner 42-42-42 DT (25г. Англ.) (10.44MB)
PDF Технический лист Brunner BKH 5.0 Corner 42-42-42 DT (25г.Англ.) (911.94KB)
9:00 - 19:00 (сб.-вс.)
















