Каминная топка Brunner HKD 7 Tunnel
Замер в подарок в день обращения!
Доставка за 1 день и 0 рублей
Вентиляционные решетки из Европы в подарок
Удобный шоурум (Славянский Мир)
- ЦЕНА: 842 700 руб.
-
Нашли дешевле?
Сделаем еще выгоднее!
Каминная топка Brunner HKD 7 Tunnel (Бруннер HKD 7 Туннель)
Модель, способная долго отдавать тепло в помещение, оснащённая чугунным корпусом и различными модификациями дымосборника:
- Чугунный дымосборник — обычное подключение дымохода, может использоваться в сочетании с системами MSS и GNF — объёмными керамическими или чугунными теплонакопительными модулями.
- Низкий чугунный дымосборник — вариант с уменьшенной высотой дымосборника.
- Чугунный дымосборник с теплообменными кольцами — быстрый нагрев и быстрая отдача тепла в помещение, высокая мощность конвекции в небольшом пространстве.
- Теплонакопительный модуль MAS — компромиссный вариант между предыдущими решениями, когда необходим теплонакопительный эффект в ограниченном пространстве.
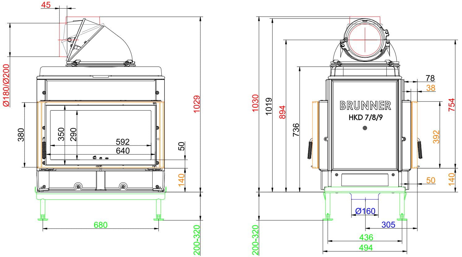
Номинальная мощность равна 9 кВт, чего хватает для обогрева помещения в 225 м³. У топки два прямых жаропрочных стекла, образующих сквозной обзор. Обрамление вокруг него можно выбрать самостоятельно. Дверцы с боковым открыванием. Ширина дверцы — 640 мм, высота — 350 мм.
Топочная камера футерована шамотом светлого цвета. Модель с подовой (безколосниковой) системой горения. Топка обладает всеми современными технологиями горения: вторичный дожиг газов и система "Чистое стекло". Очаг с возможностью притока воздуха извне. Для отвода продуктов сгорания необходим дымоход диаметром 180 мм. Гарантия — 5 лет.
Устройство можно дооснастить:
- автоматической системой управления горением EAS;
- двойным остеклением, снижающим температуру наружного стекла на 100-200 °C;
- чёрной дверной ручкой.
Каминные топки Brunner HKD

Каминные топки Бруннер HKD — это классические изделия с высокой тепловой инерцией. Корпус очагов HKD выполнен из цельнолитого чугуна соединённого болтами, что обеспечивает более длительную отдачу тепла в помещение. Модельный ряд состоит из топок с разными вариантами стекла:
- Прямое — классический вариант. Стекло может быть совсем небольшим, установленным в чугунную дверцу.
- Панорамное — закругленное стекло, открывающее более широкий обзор внутрь топочной камеры.
- Два стекла — широкое фронтальное и дополнительное боковое, расположенное слева или справа. Модели предназначены для пристенно-углового расположения.
- Туннельное — сквозной обзор на огонь. Такие топки лучше всего располагать в стене между двумя комнатами.
Дверца в серии всегда открывается вбок. Номинальная мощность топок — от 7 до 13 кВт. Гарантия — 5 лет. Подробнее об особенностях топок Brunner HKD:
Многообразие дымосборников
Один из важнейших элементов каминной топки — дымосборник. В компании Brunner решили не ограничиваться одним вариантом. Выбор дымосборника в каждой топке остаётся за покупателем, исходя из его пожеланий и потребностей:
Чугунный дымосборник

Обычное подключение, наиболее доступный по цене вариант. Может использоваться в сочетании с системами MSS и GNF — объёмными керамическими или чугунными теплонакопительными модулями, устанавливаемыми рядом с топкой или на неё. Такое решение подходит для тех, кто хочет создать полноценный теплоаккумулирующий камин, способный очень долго отдавать тепло в дом.
Чугунный дымосборник с теплообменными кольцами

Горячий воздух проходит через металлические кольца с ребристой структурой. Этот вариант обеспечивает быстрый нагрев и быструю отдачу тепла в помещение. После растопки, для поддержания постоянной теплоотдачи, нужно добавлять дрова примерно один раз в три часа. Расход топлива будет достаточно небольшим. Это идеальное решение, когда требуется высокая мощность конвекции в небольшом пространстве.
Чугунный дымосборник + теплонакопительный модуль MAS

Горячий воздух проходит через керамические теплонакопительные кольца. Конструкция колец выполнена в виде спирали с тремя каналами для горячего воздуха. Это компромиссный вариант между предыдущими решениями, когда необходим теплонакопительный эффект в ограниченном пространстве.
Чугунный дымосборник + бойлер

Горячий воздух проходит через встроенный водяной теплообменник. Модуль с гладкими стенками и вертикально расположенными трубами теплообменника оптимизирован для минимального расхода топлива. Решение для тех, кто хочет организовать полноценную систему отопления в своём доме.
Футеровка

Топочная камера Brunner HKD выложена натуральным шамотом светлого цвета: такая футеровка подчеркнёт всю красоту горения.
Подовое горение
В топках Brunner HKD используется подовая система горения: без колосника и зольного ящика. Благодаря откалиброванной подаче воздуха дрова сгорают особенно чисто и эффективно.
Стекло
В топках Brunner используется термостойкое стекло из стеклокерамики. Это специальная разработка, рассчитанная на высокие температуры и механические нагрузки, возникающие в камере сгорания. На выбор покупателя доступно несколько вариантов остекления:
Стандартное одинарное остекление

Абсолютное большинство тепловых лучей проходит через керамическое стекло в помещение. Расстояние для размещения мебели или горючих элементов от топки должно составлять не менее 120 см.
Двойное стекло

Снижает температуру поверхности внешнего стекла на 100-200 °C, что делает нахождение у топки более безопасным и комфортным.
Современные системы горения
Все топки Brunner оснащены современными системами горения: вторичный (дополнительный) дожиг газов, повышающий эффективность горения, и система "Чистое стекло" — по специальным каналам происходит обдув стекла, что обеспечивает его чистоту.
Также все модели Brunner имеют возможность подвода воздуха на горение извне (из соседнего помещения или улицы).
Варианты обрамления дверцы

В серии топок Brunner HKD покупатель может выбрать обрамление дверцы по своему усмотрению:
- Монтажная рама, окрашенная в чёрный цвет или выполненная из нержавеющей стали, что делает примыкание топки к облицовке практически незаметным.
- Фронтальная панель или рама, значительно выступающая по периметру, образующая полноценную законченную конструкцию. Варианты исполнения: окрашенная сталь, нержавеющая сталь или чугун.
Удобная ручка

В серии топок Brunner HKD устанавливается небольшая ручка со спиралью из нержавеющей стали. Опционально ручку можно заменить на окрашенную в чёрный цвет.
Система управления горением EAS

Brunner озаботилась безопасностью отопления, удобством эксплуатации и минимизацией выбросов вредных веществ в атмосферу. Так, в 1990 году была разработана первая версия системы EAS.
Сегодняшний вариант автоматически регулирует подачу воздуха и обеспечивает оптимальное горение. Система распознает влажные или неподходящие дрова, даст указания по идеальному времени для повторной загрузки. После сгорания топлива EAS отключает подачу воздуха для повышения эффективности и комфорта. Не нужно самому следить за горением и регулировать его процесс. Всё, что остаётся делать вам, — развести огонь или добавить дров.
Дополнительная дверца
Часть моделей может снабжаться дополнительной дверцей, расположенной слева, справа или сзади. Такая модификация даст дополнительный обзор внутрь топочной камеры и позволит загружать топливо ещё с одной стороны.
О компании Brunner

Бруннер — семейная немецкая компания с многолетней историей, расположенная в городе Эггенфельден, Нижняя Бавария. С момента основания Мартин Бруннер руководствовался следующей целью: создание высококачественных, честных и долговечных устройств. Эта цель остаётся актуальной и сегодня, вот уже около 80 лет.
Топки и печи Brunner — продукция премиум-класса с достаточно высокой ценой, поскольку дешёвое решение никогда не будет лучшим. Компания создаёт свои приборы, рассчитывая на долгие годы службы, с использованием последних технологий и высококачественных материалов. Данное утверждение подтверждается тем, что более миллиона семей по всему земному шару наслаждаются продукцией Brunner.
Высокая стоимость товара окупится благодаря бесперебойной эксплуатации, незначительным затратам на тех. обслуживание, сбалансированному распределению тепла и максимальной эффективности отопительных приборов Brunner. Качество и эффективность каминных топок подтверждаются многочисленными сертификатами: 15a BVG (2015), LRV и 1.BlmSchV Stufe 2.
| Характеристики товара | |
| Высота (мм) | 1349 | 1196 | 1782 | 2134 |
| Ширина (мм) | 770 |
| Глубина (мм) | 616 |
| Мощность (кВт) | 9 |
| Вес (кг) | 314 |
| Высота по дверце (стеклу) (мм) | 350 |
| Ширина по дверце (стеклу) (мм) | 640 |
| Диаметр дымохода (мм) | 180 |
| Стекло | Туннельное |
| Колосник и зольник | Нет |
| Водяной контур | Нет |
| Объем помещения (м3) | 225 |
| Длина поленьев (см) | 50 |
| Материал топки | Чугун |
| Открывание дверцы | Боковое |
| Приток воздуха извне | Есть |
| Страна производства | Германия |
| Топливо | Дрова |
| Футеровка | Шамот |
| Гарантия | 5 лет |
Инструкции и файлы
PDF Каталог Топки Brunner на дровах (2025 г., Англ.) (15.71MB)PDF Руководство пользователя Brunner HKD, WF, WFr, DF (2024г, Англ.) (3.5MB)
PDF Рук. по монтажу Brunner HKD 7 (2023 г. Англ.) (6.81MB)
PDF Технический лист Brunner HKD 7 Tunnel (2025 г. Англ.) (3.69MB)
9:00 - 19:00 (сб.-вс.)












