Замер в подарок в день обращения!
Доставка за 1 день и 0 рублей
Вентиляционные решетки из Европы в подарок
Удобный шоурум (Славянский Мир)
- ЦЕНА: 420 550 руб.
-
Нашли дешевле?
Сделаем еще выгоднее!
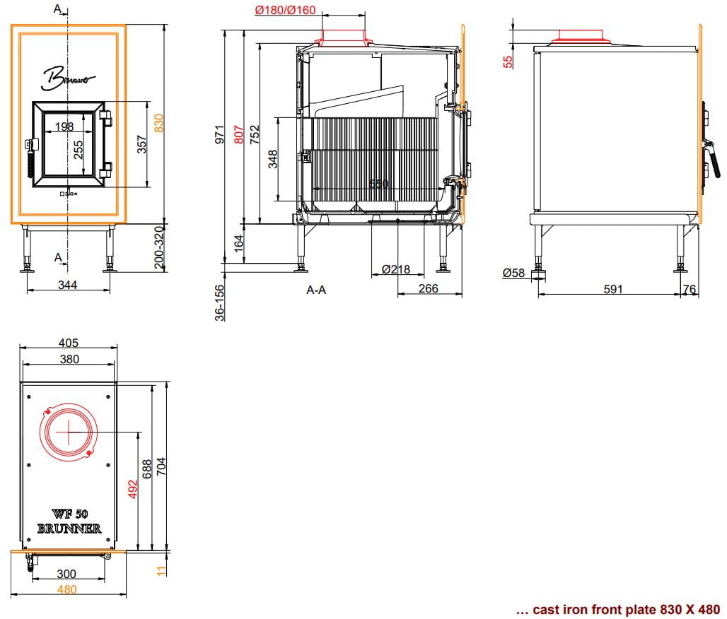
Каминная топка Brunner WF 50 (Бруннер WF 50)
Модель, способная долго отдавать тепло в помещение, оснащённая чугунным корпусом. Номинальная мощность равна 9 кВт, чего хватает для обогрева помещения в 225 м³. У топки прямое жаропрочное стекло, обрамление вокруг него можно выбрать самостоятельно. Дверца с боковым открыванием. Ширина дверцы — 300 мм, высота — 360 мм.
Топочная камера футерована шамотом светлого цвета. Модель с подовой (безколосниковой) системой горения. Топка обладает всеми современными технологиями горения: вторичный дожиг газов и система "Чистое стекло". Очаг с возможностью притока воздуха извне. Для отвода продуктов сгорания необходим дымоход диаметром 180 мм. Гарантия — 5 лет.
Устройство можно дооснастить:
- автоматической системой управления горением EAS;
- адаптером для притока воздуха извне (поставляется в комплекте с EAS);
- регулируемыми по высоте ножками.
Каминные топки Brunner WF и WFr

Каминные топки Бруннер WF / WFr — это классические изделия с высокой тепловой инерцией. Корпус очагов выполнен из цельнолитого чугуна соединённого болтами, что обеспечивает более длительную отдачу тепла в помещение. Модельный ряд состоит из топок с прямым стеклом небольшого размера. Дверца в серии всегда открывается вбок. Номинальная мощность топок — от 6 до 9 кВт. Гарантия — 5 лет. Подробнее об особенностях топок Brunner WF:
Футеровка

Топочная камера Brunner WF выложена натуральным шамотом светлого цвета: такая футеровка подчеркнёт всю красоту горения.
Подовое или колосниковое горение
Покупателю предоставляется выбор системы горения:
- В топках Brunner WF используется подовая система горения: без колосника и зольного ящика. Благодаря откалиброванной подаче воздуха дрова сгорают особенно чисто и эффективно.
- Модели Brunner WFr оснащаются чугунной колосниковой решёткой с механизмом вращения и выдвижным зольным ящиком. Это классическое решение позволит использовать бурый уголь в качестве топлива.
Стекло

В топках Brunner используется термостойкое стекло из стеклокерамики. Это специальная разработка, рассчитанная на высокие температуры и механические нагрузки, возникающие в камере сгорания.
Современные системы горения
Все топки Brunner оснащены современными системами горения: вторичный (дополнительный) дожиг газов, повышающий эффективность горения, и система "Чистое стекло" — по специальным каналам происходит обдув стекла, что обеспечивает его чистоту.
Также все модели Brunner имеют возможность подвода воздуха на горение извне (из соседнего помещения или улицы). Для подключения в данной серии необходимо приобрести адаптер.
Варианты обрамления дверцы
В серии топок Brunner WF покупатель может выбрать размер чугунного обрамления дверцы по своему усмотрению. В зависимости от модели доступно до пяти размеров:
- 83 / 48 см;
- 83 / 52 см;
- 79 / 42 см;
- 89.5 / 48 см;
- 106 / 48 см.
Удобная ручка

В серии топок Brunner WF устанавливается небольшая ручка со спиралью из нержавеющей стали. Опционально ручку можно заменить на окрашенную в чёрный цвет.
Система управления горением EAS

Brunner озаботилась безопасностью отопления, удобством эксплуатации и минимизацией выбросов вредных веществ в атмосферу. Так, в 1990 году была разработана первая версия системы EAS.
Сегодняшний вариант автоматически регулирует подачу воздуха и обеспечивает оптимальное горение. Система распознает влажные или неподходящие дрова, даст указания по идеальному времени для повторной загрузки. После сгорания топлива EAS отключает подачу воздуха для повышения эффективности и комфорта. Не нужно самому следить за горением и регулировать его процесс. Всё, что остаётся делать вам, — развести огонь или добавить дров.
О компании Brunner

Бруннер — семейная немецкая компания с многолетней историей, расположенная в городе Эггенфельден, Нижняя Бавария. С момента основания Мартин Бруннер руководствовался следующей целью: создание высококачественных, честных и долговечных устройств. Эта цель остаётся актуальной и сегодня, вот уже около 80 лет.
Топки и печи Brunner — продукция премиум-класса с достаточно высокой ценой, поскольку дешёвое решение никогда не будет лучшим. Компания создаёт свои приборы, рассчитывая на долгие годы службы, с использованием последних технологий и высококачественных материалов. Данное утверждение подтверждается тем, что более миллиона семей по всему земному шару наслаждаются продукцией Brunner.
Высокая стоимость товара окупится благодаря бесперебойной эксплуатации, незначительным затратам на тех. обслуживание, сбалансированному распределению тепла и максимальной эффективности отопительных приборов Brunner. Качество и эффективность каминных топок подтверждаются многочисленными сертификатами: 15a BVG (2015), LRV и 1.BlmSchV Stufe 2.
| Характеристики товара | |
| Высота (мм) | 830 |
| Ширина (мм) | 480 |
| Глубина (мм) | 715 |
| Мощность (кВт) | 9 |
| Вес (кг) | 246 |
| Высота по дверце (стеклу) (мм) | 360 |
| Ширина по дверце (стеклу) (мм) | 300 |
| Диаметр дымохода (мм) | 180 |
| Стекло | Прямое |
| Колосник и зольник | Нет |
| Водяной контур | Нет |
| Объем помещения (м3) | 225 |
| Длина поленьев (см) | 50 |
| Материал топки | Чугун |
| Открывание дверцы | Боковое |
| Приток воздуха извне | Есть |
| Страна производства | Германия |
| Топливо | Дрова |
| Футеровка | Шамот |
| Гарантия | 5 лет |
Инструкции и файлы
PDF Каталог Топки Brunner на дровах (2025 г., Англ.) (15.71MB)PDF Руководство пользователя Brunner HKD, WF, WFr, DF (2024г, Англ.) (3.5MB)
PDF Рук. по монтажу Brunner WF 50 (2023 г. Англ.) (3.12MB)
PDF Технический лист Brunner WF 50 (2023 г. Англ.) (937.75KB)
PDF Декларация соотв. Brunner WF 50 (2026 г, Англ.) (89.31KB)
9:00 - 19:00 (сб.-вс.)



