Каминная топка Ildnord Malmo угловое стекло Слева/Справа
Замер в подарок в день обращения!
Доставка за 1 день и 0 рублей
Вентиляционные решетки из Европы в подарок
Удобный шоурум (Славянский Мир)
- ЦЕНА: 187 000 руб.
-
Нашли дешевле?
Сделаем еще выгоднее!
Описание данной топки
Каминная топка Ildnord Malmo угловое стекло Слева/Справа (ИлдНорд Мальмо угловое стекло Слева/Справа) изготовлена из стали. Обладая номинальной мощностью в 11 кВт, устройство может обогреть помещение в 275 м³. КПД — 81%. Топка оборудована дверцей с боковым открыванием. Стекло угловое, без перемычек, что позволяет наблюдать за огнем с большого угла. Вторая часть стекла расположена слева (L) или справа (R).
Топка с технологией подового (безколосникового) горения. Топочная камера футерована керамикой. Модель обладает всеми современными технологиями горения: вторичный дожиг газов и система "Чистое стекло". Очаг с возможностью притока воздуха извне. Для отвода продуктов сгорания необходим дымоход диаметром 180 мм.
Топки Ildnord Malmo
Максимальное использование энергии
Боковые и фронтальная часть корпуса каминной топки Malmo изготовлены из высококачественной стали. Плотно расположенные радиаторы обеспечивают высокую эффективность и максимальное использование тепла. Топка футерована керамическим материалом, повышающим температуру в камере сгорания. Приток воздуха в камеру сгорания может осуществляться через вставку для забора наружного воздуха диаметром 125 мм.
Дожиг газов улучшен благодаря наличию двух дефлекторов. Регулирование подачи вторичного воздуха влияет на уменьшение количества вредных выбросов в окружающую среду.
Безопасность на высшем уровне
Линейка Malmo включает в себя топки с прямой и угловой (два стекла) формой стекла без перемычек. Угловые модели представлены в двух вариациях — с левосторонним или правосторонним остеклением. Стекло выполнено из жаростойкой керамики, выдерживающей температуру до 660 °C. Копоть на стекле практически не оседает благодаря системе "Чистое стекло".
Комфортное пользование
Топки оснащены большими дверцами с боковым открыванием. Подовое горение обеспечивает сгорание топлива до мелкой золы в минимальном количестве. Таким образом, тепловая энергия, получаемая из дров, используется максимально. Направление выхода дымохода можно изменить: назад или вверх.
Каминные топки Ildnord

Материал изделия — это важный элемент каминной топки, который влияет на ее функциональность и внешний вид:
- Чугунные каминные топки Ildnord обладают аккумулирующей способностью. После прогрева способны долго отдавать тепло в помещение.
- Стальные каминные топки Ildnord характеризуются прогрессивными технологическими решениями при максимальной видимости огня.
- Стальные компоненты вырезаны лазером и сформированы на гибочных станках с ЧПУ;
- Наличие топок с широким диапазоном мощности;
- Разнообразие ассортимента каминных топок: в зависимости от размера, назначения и типа системы отопления.
Правильный выбор камина позволяет обеспечить идеальный баланс между теплом и экономией.
Соответствие экологическим требованиям
Ildnord делает все, чтобы продукция была максимально экологичной.
![]() |
Высокий стандарт Последние линии каминных топок и печей соответствуют строгим немецким стандартам выбросов BImSchV 2. |
![]() |
Рекуперация Изделия Ildnord подходят для современных домов с принудительной вентиляцией. |
![]() |
Высокий КПД Благодаря высокому коэффициенту полезного действия дрова, которые горят в наших топках, отдают максимальное количество энергии. |
![]() |
Низкий показатель выбросов СО2 Постоянная работа над совершенствованием параметров каминных топок способствует снижению показателя выбросов СО2. |

Ildnord — это польский бренд каминов и отопительных приборов. Компания делает ставку на высокое качество, надежность, функциональность — и это все по доступной цене.Все продукты Ildnord изготовлены из проверенных материалов с максимальной тщательностью и заботой о каждой детали благодаря современным технологиям, влияющим на производственный процесс.
Выпускаемая продукция легка в использовании, при этом сочетает в себе стиль и простоту в установке. Изделия от Ildnord не только впишутся в самые различные интерьеры, но и станут их неотъемлемой частью.
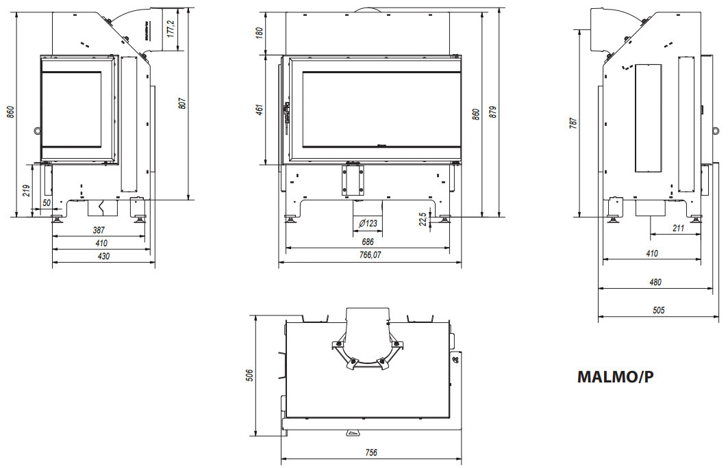
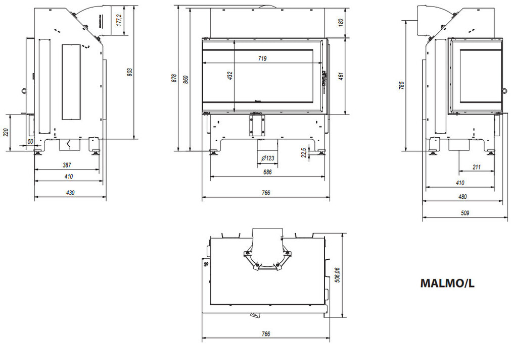
| Характеристики товара | |
| Высота (мм) | 879 |
| Ширина (мм) | 766 |
| Глубина (мм) | 509 |
| Мощность (кВт) | 11 |
| Вес (кг) | 155.8 |
| Высота по дверце (стеклу) (мм) | 432 |
| Ширина по дверце (стеклу) (мм) | 719 |
| Диаметр дымохода (мм) | 180 |
| Стекло | Два стекла |
| КПД (%) | 81 |
| Колосник и зольник | Есть |
| Водяной контур | Нет |
| Объем помещения (м3) | 275 |
| Материал топки | Сталь |
| Открывание дверцы | Боковое |
| Приток воздуха извне | Есть |
| Страна производства | Польша |
| Топливо | Дрова |
| Футеровка | Керамика |
| Гарантия | 2 года |
Инструкции и файлы
PDF Инструкция по эксплуатации Каминные топки Ildnord Malmo (Анг.) (758.04KB)PDF Техническая карта Каминная топка Ildnord Malmo L (Анг.) (61.59KB)
PDF Декларация об использовании топки Ildnord Malmo L (2025 г, Анг.) (171.89KB)
PDF Декларация об использовании топки Ildnord Malmo P (2025 г, Анг.) (171.88KB)
9:00 - 19:00 (сб.-вс.)
















