Удобный шоурум (Славянский Мир)
Демонстрационный стенд с разными производителями
- ЦЕНА: 892 200 руб.
-
Нашли дешевле?
Сделаем еще выгоднее!
Описание данной кухни
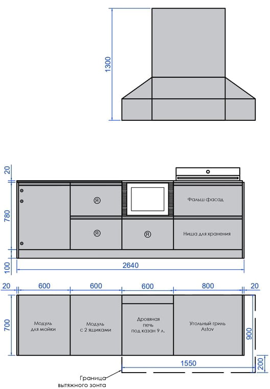
Кухня Астов № BBQ 12 (Кухня Astov BBQ № 12) — полноценная комплектация для тех, кто любит готовку на натуральном топливе. Готовить можно на угольном гриле или дровяной печи под казан объёмом 9 л. Ширина комплекта — 2640 мм.
Корпус и фасады элементов выполнены из оцинкованной стали толщиной 1 мм. Фасады двухконтурные с шумоизоляцией. Корпус и фасады окрашены порошковой краской цвета RAL5011 в 2 слоя. Окраска в стандартные цвета (RAL3019, RAL7016, RAL1019, RAL9005, RAL7037) без доплаты.
В комплектацию данной кухни входит:
- Фальш-панель боковая с регулируемыми ножками 20 мм.
- Модуль под мойку (левый) 600 мм.
- Модуль для хранения с 2 ящиками 600 мм
- Дровяная печь под казан 9 л (600 мм).
- Угольный гриль Astov с нишей для хранения 800 мм.
- Фальш-панель боковая с регулируемыми ножками 20 мм
- Вытяжной зонт с подсветкой шириной 1550, глубиной 900 и высотой 1300 мм.
В базовую комплектацию не входят холодильник, столешница, мойка и смеситель! Эти элементы можно заказать отдельно.

Уличные кухни Астов
Компания Астов, обладая 20-летним опытом в производстве каминных топок и печей, в 2021 году открыла цех изготовления уличных кухонь. Учитывая многолетний опыт, а также отзывы и пожелания клиентов специалисты компании создают качественные модули с современным дизайном. Производство кухонь Астов не конвейерное — каждый модуль собирается вручную и проходит свой контроль качества в техническом отделе.
Поставщики комплектующих и производственного оборудования отбирались долгие годы, компания работает только с самыми лучшими производителями как из России, так и из-за рубежа: фурнитура элементов от Австрийского производителя Blum, каркас модулей выполнен из оцинкованной (стандартная комплектация) или нержавеющей стали. Фасады двухконтурные с шумоизоляцией, материал на выбор:
|
Оцинкованная сталь покрытая порошковой краской. |
|
Нержавеющая брашированная сталь. |
|
Керамогранит Laminam 3.5 мм в алюминиевом профиле. |
|
Многослойный HPL — пластик нового поколения. |
Модули разработаны под толщину столешницы в 20 мм. Несмотря на ручную сборку элементов вам не придётся долго ждать своего заказа — отгрузка товара происходит 2-3 раза в неделю.
| Характеристики товара | |
| Тип товара | Уличная кухня |
| Ширина (мм) | 2640 |
| Материал корпуса | Оцинкованная сталь |
| Материал фасада | Оцинкованная сталь |
| Страна производства | Россия |
| Цвет | RAL5011 |
| Фурнитура | Германия |
Инструкции и файлы
PDF Инструкция по эксплуатации Astov BBQ (139.59KB)PDF Руководство по сборке Уличные кухни Астов (5.44MB)
PDF Презентация Уличные кухни Астов (6.3MB)
9:00 - 19:00 (сб.-вс.)






