Замер в подарок в день обращения!
Доставка за 1 день и 0 рублей
Вентиляционные решетки из Европы в подарок
Удобный шоурум (Славянский Мир)
- ЦЕНА: 278 300 руб.
-
Нашли дешевле?
Сделаем еще выгоднее!
Описание данной топки
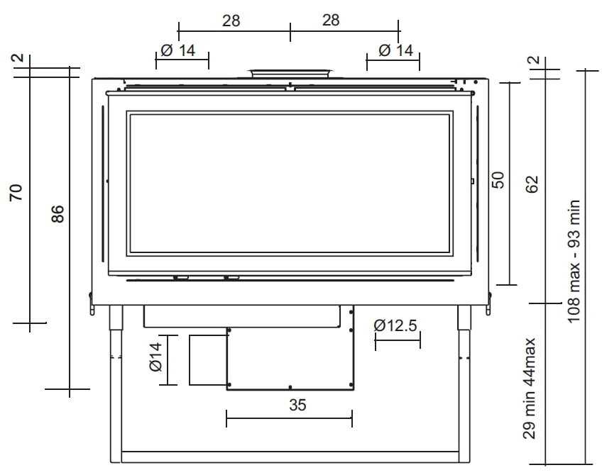
Каминная топка Edilkamin Screen 80 N (ЭдилКамин Скрин 80 Н) — это высокоэффективная модель с толстым стальным корпусом. Мощность устройства составляет 9 кВт, чего хватает для обогрева помещения в 220 м³. КПД — 78%. У топки прямое жаропрочное стекло. Дверца с боковым открыванием. Высота дверцы — 500 мм.
Топочная камера футерована огнеупорной керамикой Ecokeram. Топка с технологией подового (безколосникового) горения. Модель обладает всеми современными технологиями горения: вторичный дожиг газов и система "Чистое стекло". Очаг с возможностью притока воздуха извне и распределения горячего воздуха по комнатам. Для отвода продуктов сгорания необходим дымоход диаметром 200 мм.
Каминные топки Edilkamin Screen

Каминные топки ЭдилКамин Screen — это европейские отопительные устройства, объединяющие в себе дизайн и инновационные технологии. Корпус изделий выполнен из качественной толстой стали, КПД моделей с естественной вентиляцией достигает 84.5%. Мощность устройств — от 8 до 14 кВт. Очаги оснащены возможностью распределения тепла по соседним комнатам.
В топках используется прямое термостойкое стекло, способное выдержать температуру до 800° C. Дверца чаще всего с боковым открыванием, однако есть модели с открытием на себя. Футеровкой топочной камеры выступает керамика Ecoceram или шамот. В серии Screen используется технология подового (безколосникового) горения.
Топки Edilkamin оснащены современными системами горения: вторичный (дополнительный) дожиг газов, повышающий эффективность горения, и система "Чистое стекло" — по специальным каналам происходит обдув стекла, что обеспечивает его чистоту. Все модели с возможностью притока воздуха извне, а некоторые ещё снабжаются системой принудительной вентиляции, управлять которой можно с помощью пульта Д/У.
Общая схема работы топок EdilKamin представлена ниже:

- Первичная подача воздуха для горения.
- Вторичный забор воздуха (поступает через верхнюю часть дверцы, создавая систему "Чистое стекло").
- Третичный забор воздуха (поступает через ряд отверстий в верхней части камеры сгорания).
- Зазор для нагрева воздуха.
- Теплообменник для горячего воздуха.
- Вентилятор воздуха с электронным управлением.
- Отверстия для распределения горячего воздуха по комнатам.
- Отверстие для выхода дымовых газов.
- Дверь, оснащенная керамическим стеклом, способным выдержать температуру до 800° C.
Схему, соответствующую вашей модели, смотрите в техническом паспорте изделия.
О производителе EdilKamin

Компания EdilKamin (ЭдилКамин) — один из европейских лидеров в области отопительного оборудования. Бренд был основан в 1963 году, и вот уже больше 60 лет занимается производством пеллетных и дровяных печей, каминных топок и облицовок к ним.
Штаб-квартира компании располагается в городе Лайнате, провинция Милан, Италия. Там, с 1982 года, размещаются отделы общего управления, бизнес-подразделений, администрации, маркетинга, информационных технологий, а также выставочный зал со всей продукцией, общей площадью более 1000 м². В Габбьонете Бинануова, в провинции Кремона, расположено историческое предприятие общей площадью 70 000 м² и крытой — 25 000 м². В городе Лаванью (провинция Верна) расположены научно-исследовательская лаборатория и технический центр, где разрабатываются, проектируются, улучшаются и тестируются (для получения необходимых сертификатов и разрешений) продукты компании.
В штате предприятия трудятся более 250 сотрудников, 1500 продавцов и 60 агентов. Топки, печи и облицовки пользуются популярностью не только в самой Италии, но и в Европе — продукция компании экспортируется в более чем 30 стран, общее количество сервисных центров достигает отметки в 450 представительств.
EdilKamin сегодня — это многолетний опыт разработки, шесть производств как в своей стране, так и по всей Европе, передовые технологии и итальянский стиль в каждом изделии.
| Характеристики товара | |
| Высота (мм) | 1080 |
| Ширина (мм) | 900 |
| Глубина (мм) | 520 |
| Мощность (кВт) | 9 |
| Вес (кг) | 170 |
| Высота по дверце (стеклу) (мм) | 500 |
| Диаметр дымохода (мм) | 200 |
| Стекло | Прямое |
| КПД (%) | 78 |
| Колосник и зольник | Нет |
| Водяной контур | Нет |
| Объем помещения (м3) | 220 |
| Материал топки | Сталь |
| Открывание дверцы | Боковое |
| Приток воздуха извне | Есть |
| Страна производства | Италия |
| Топливо | Дрова |
| Футеровка | Ecoceram |
Инструкции и файлы
PDF Каталог Печей и топок EdilKamin (2019 г.) (7.34MB)PDF Декларация соотв. Печей и топок EdilKamin (2023 г.) (589.92KB)
PDF Руководство и инструкция по монт. EdilKamin Screen (1.09MB)
9:00 - 19:00 (сб.-вс.)








